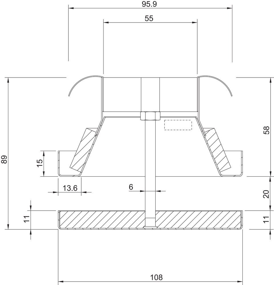
Описание
TFF - это круглый приточный клапан для потолочной установки. TFF состоит из впускного конуса и центрального диска со звукоизоляционной вставкой. Техническая спецификация диффузора обеспечивает широкий спектр применения. Расход воздуха и перепад давления могут быть плавно настроены, путем вращения центрального диска. Данный диффузор имеет экранирующее устройство для получения направленного (180°) распределения и возможность регулировки зазора.
Конструкция
TFF изготовлен из стали и покрыт белой порошковой краской (RAL 9010-80). Поставляется в следующих диаметрах: ø80, ø100, ø125, ø160 и ø200.
Монтаж
TFF легко устанавливается либо в монтажную раму, либо непосредственно в воздуховод с фиксацией распорными пружинами. Если TFF крепится к камере статического давления THOR, то длина прямого воздуховода до камеры статического давления должна составлять не менее 4-х диаметров воздуховода. Может применяться для вытяжного воздуха.








